Проекты бань из блоков с беседкой
Довольно часто, прежде чем построить дом на своем участке, обладатели этого самого участка строят баню, которая при этом служит не только для омовения, но иногда и временным жильем. Причем зачастую технологии, которые впоследствии будут применены при строительстве дома, частично обкатываются при постройке бани. И если строительство бани запланировано из блоков, то тот же материал, скорее всего, будет использован и для возведения дома.
Еще одним, полезным на участке сооружением, будет беседка или терраса – место, где удобно в летнее время посидеть после баньки, попить чайку и побеседовать.

Наиболее рациональным станет совмещение бани из блоков и беседки, а то и строительство их под одной крышей.
Размеры, планировка и эскизы
Чаще всего баня – не отапливаемое помещение, используемое по прямому назначению один – два раза в неделю и рассчитанное на одну семью. Отсюда вытекают особенности проектирования, и нюансы утепления.

Большими такие бани бывают редко, иначе их подготовка к разовой процедуре нивелирует все удовольствие от самого процесса. Баньку надо быстро протопить, затратив на это минимум сил и средств.
Рассмотрим некоторые проекты бань с беседкой, рассчитанных на семью из 3 человек.


В них показаны оптимальные размеры парилок, которые быстро выводятся в рабочий режим. Остальные помещения подобраны чисто по вкусу застройщиков и функциональному наполнению. Очевидно, если мойка – обязательный атрибут даже самой маленькой бани – служит только по прямому назначению, то площадь в 2 кв.м. вполне приемлема, но если в ней планируется установка дополнительного оборудования, то ее надо увеличивать. Терраса же глубиной 1,5 м не позволит комфортно разместить стандартный кухонный стол со стульями вокруг него, нужно минимум 1,8 м. А вот размеры комнаты отдыха в 11 кв.м. для бани с парной 4 квадрата на наш взгляд великоваты. Поэтому данные проекты нам кажутся не совсем продуманными. Еще одна их особенность – отсутствие санузлов, что вполне допустимо, но вряд ли целесообразно, учитывая специфику помещений и то, что канализация в них, все же, предусмотрена.
Для просмотра проектов нажмите на них.
При устройстве второго или мансардного этажа следует также предусмотреть дополнительную площадь для размещения лестницы. Представленные в данной группе проектов бани, рассчитаны на большее количество людей, но чисто с технической точки зрения выглядят более продуманными. Хотя нахождение санузла в предлагаемом месте на последнем из них, не кажется оправданным, ведь устройство его у стены моечной ничуть не хуже, но позволит сократить водяную и канализационную магистрали.
Также, при возведении бани из блоков желательно скорректировать габариты вашей бани под их конкретные размеры.
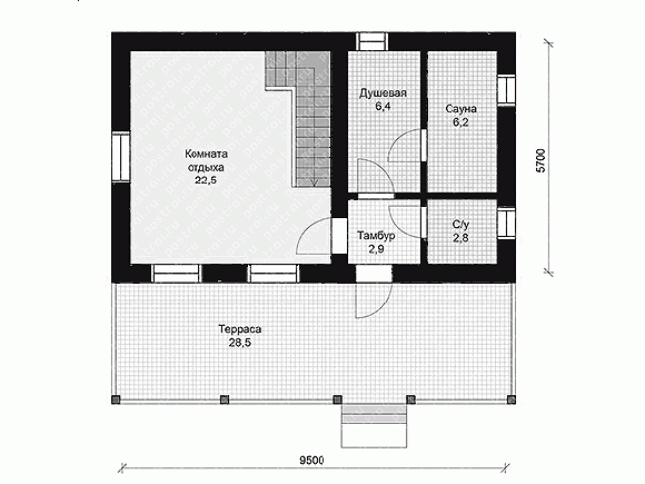
А вот проект бани с беседкой под одной крышей для одновременного посещения 8 – 10 человек, с технической точки зрения продуман хорошо.

Здесь, и возможность устройства короткой прямой ветки канализации, и отдельный вход через беседку для подноски дров в топочную, и зонирование достаточно обширной комнаты отдыха.
А вот варианты размещения беседки совместно с баней, или ее подобия – террасы (иногда совмещения обоих) – будут рациональными с устройством таких крыш:



Часто атрибутом такой площадки для отдыха становится камин, барбекю или другой подобный прибор.


А вот его обслуживание вне помещения значительно упрощается.
Проект бани из блоков с беседкой под одной крышей
Предлагаемый проект включает рациональный набор помещений и продуманную планировку для семьи из 3 – 4 человек.

В нем, при небольших габаритных размерах, присутствуют и беседка, наиболее традиционной для таких построек формы, и небольшая терраса с барбекю, и все необходимые банные помещения оптимальной площади.

Единственное, что бы мы посоветовали рассмотреть при его возможной реализации, так это размещение санузла в помывочной, без ущерба для ее функциональности, и за счет этого, увеличения площади комнаты отдыха. В таком варианте наличие тамбура может быть и не оправданным.

Такие баня с беседкой, расположенные под одной крышей, могут стать изюминкой любого подворья, в архитектурном плане – тоже.
Особенности строительства бань из блоков
Во-первых, блоки могут быть разными по составу материала, а значит иметь различные физические свойства и характеристики:
- шлакоблоки;
- керамзитобетонные;
- арболитовые;
- полистиролбетонные;
- пенобетонные;
- газобетонные (газосиликатные).
От этого зависят не только размеры постройки, но и способ ее возведения, и технические характеристики здания.
Во-вторых, само назначение сооружения диктует необходимость применения конструктивных решений, отличающихся от используемых при возведении обычных домов. В чем разница?
Из перечисленных блоков для бань наиболее подходят полистиролбетонные – не впитывающие влагу, самые теплые, не дающие трещин. Главным недостатком остальных является их высокая гидрофобность, что для бань более критично, чем для других построек.
Строить из строительных блоков проще, чем из большинства других традиционных материалов, тем более что на сооружениях небольших размеров, коими преимущественно и являются бани, больших ошибок вы допустить не сможете:
Но соблюдение технологии укладки – обязательно. Наиболее часто применяются газоблоки.
Для хорошей теплоизоляции нужна толщина стен не менее 80 см, но в случае с баней этот показатель может быть радикально снижен, ведь в ней не живут, а нагрев происходит кратковременный и интенсивный. Важнее защитить газобетон (да и большинство вышеупомянутых блоков) от проникновения влаги: как снаружи, так и изнутри.
Снаружи наиболее целесообразным будет устройство вентилируемого фасада с использованием супердиффузионной мембраны. При этом материал финишной отделки особой роли не играет. А вот изнутри, особенно в парилке, важно выполнить не только гидроизоляцию, но и утепление, обеспечивающее быстрый прогрев помещения и полное отсутствие проникновения влаги в стены. Поможет вам в этом подробная видеоинструкция.
При укладке на стены керамической плитки или подобных ей отделочных материалов в душевых или комнатах отдыха, на обрешетку следует крепить влагостойкие плитные материалы: ЦСП, влагостойкий гипсокартон т.п., и уже на них производить приклеивание.

Шикарные реальные шлюхи Беслан по вызову, желанные и восхитительные, они такие изобретательные и оригинальные, что ты не устоишь перед ними. Не отказывай себе в удовольствии. Встречаются реальные шлюхи Беслан по вызову индивидуально в апартаментах и на выезд - redbeslan.ru. Задавайте тему для ролевых игр и будете приятно удивлены сноровкой и воображением проституток города.
vozdmir.ru








